香醍漫步
更新時間:2017-05-31
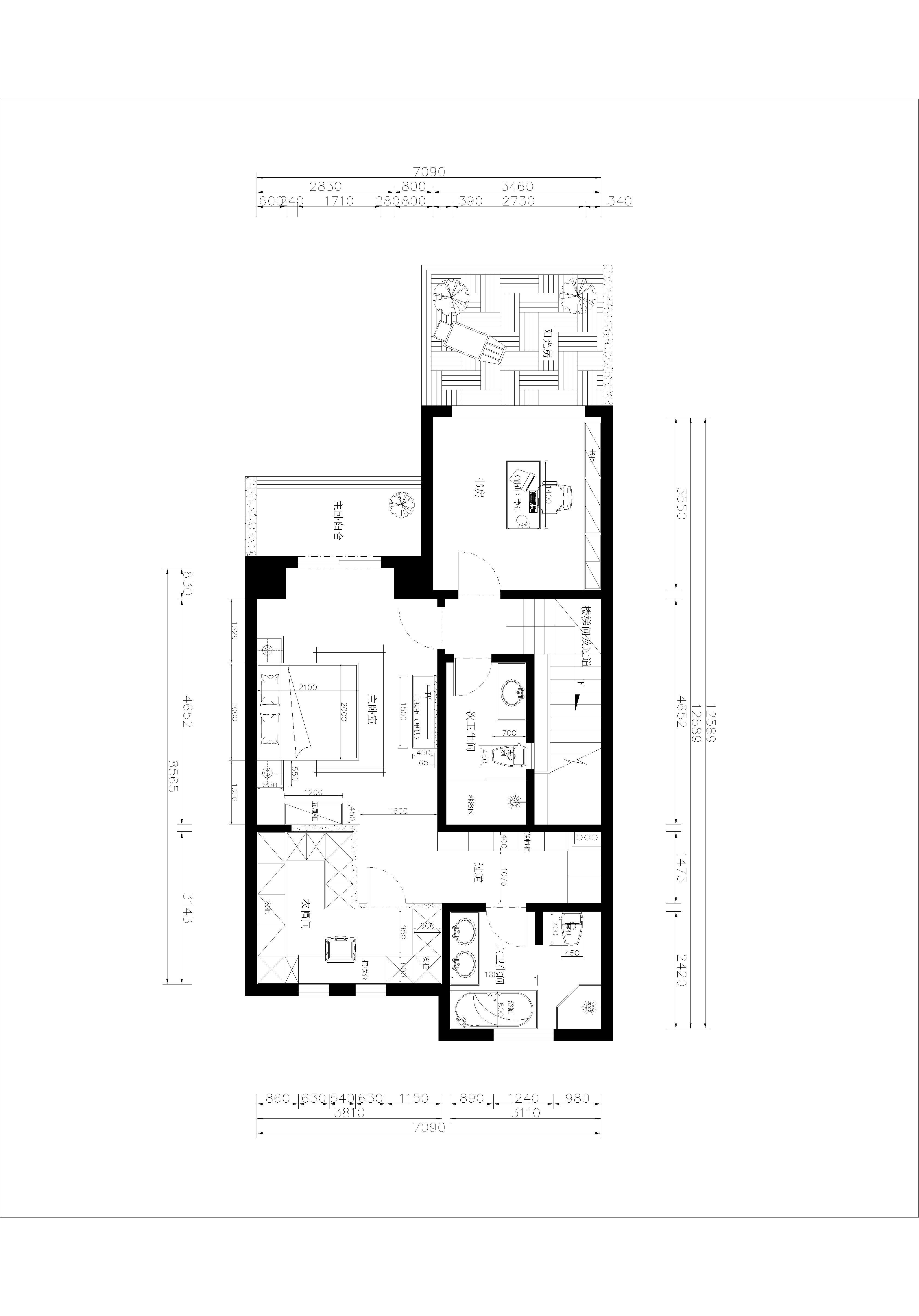
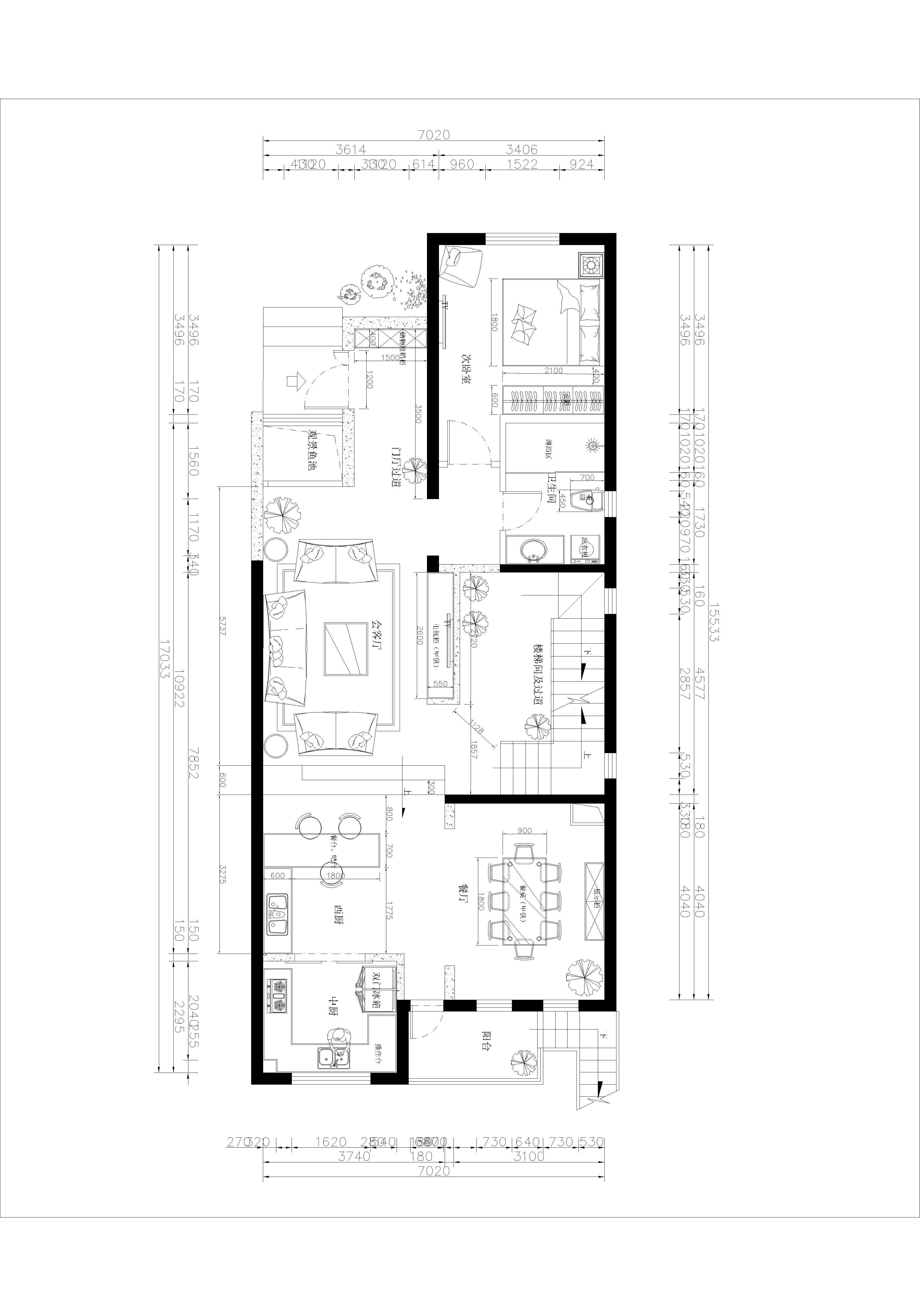
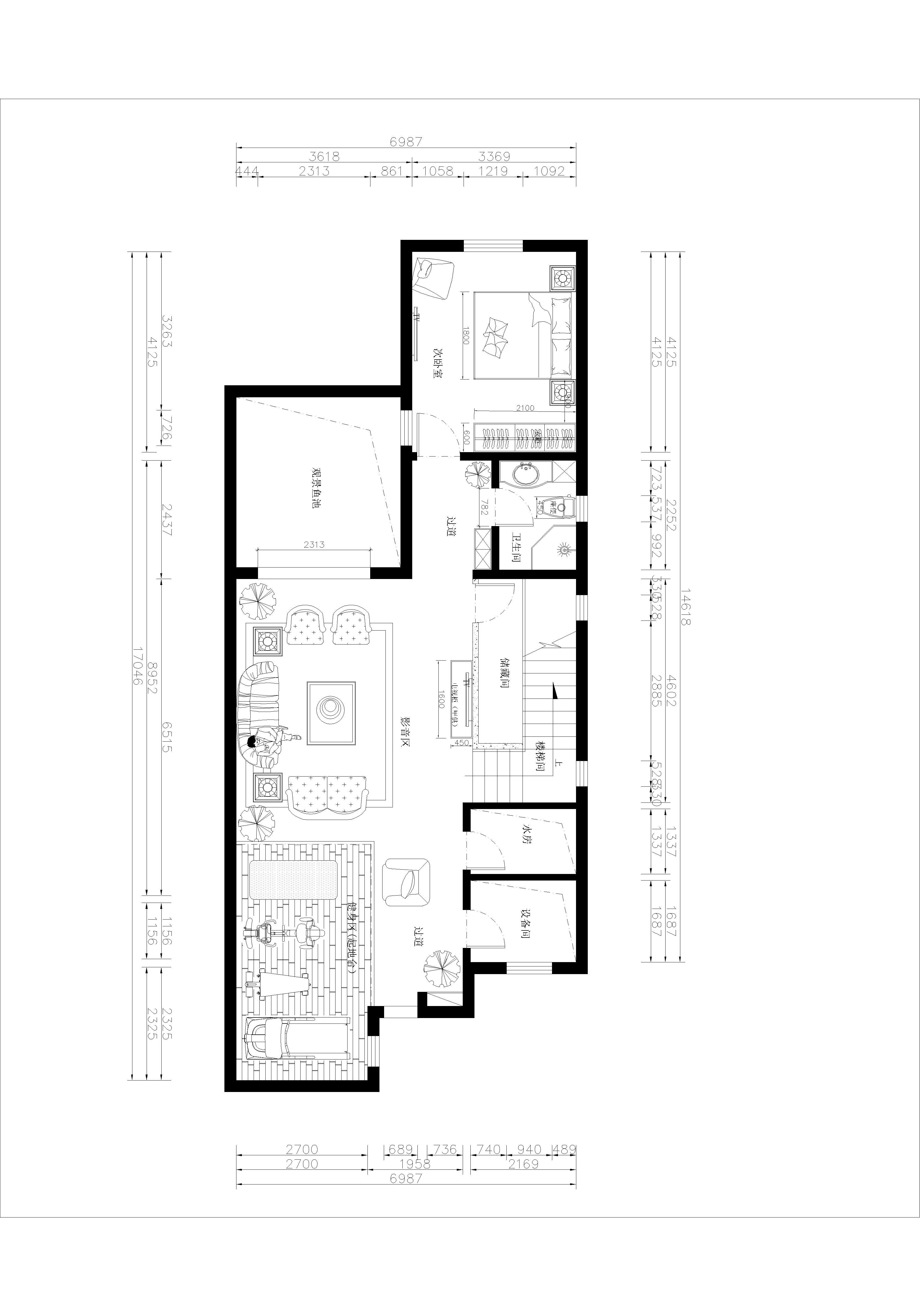
設計風格 | 簡約美式 | 戶型案例 | 別墅 | 案例面積 | 320 |
---|---|---|---|---|---|
樓盤名稱 | 香醍漫步 | 所在城市 | 北京 | 案例造價 | 60萬 |
設計師 |

案例說明:
這是一套以美式風格為主搭配簡約風格的設計方案,設計上追求美式自然、大氣的特點,同時考慮到業(yè)主夫婦比較年青,喜歡時尚,因此加入了不少時尚簡約的設計元素加以精細的后期配飾融入到設計風格之中,使這個居室更加完美!
同風格案例:更多>>
同面積案例: