西山華府
更新時間:2017-05-31
設計風格 | 美式 | 戶型案例 | 4室2廳 | 案例面積 | 220 |
---|---|---|---|---|---|
樓盤名稱 | 西山華府 | 所在城市 | 北京 | 案例造價 | 50 |
設計師 |

案例說明:
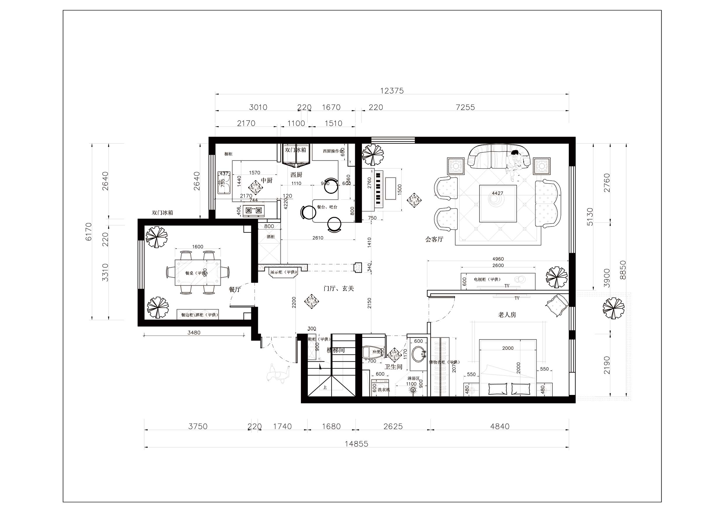
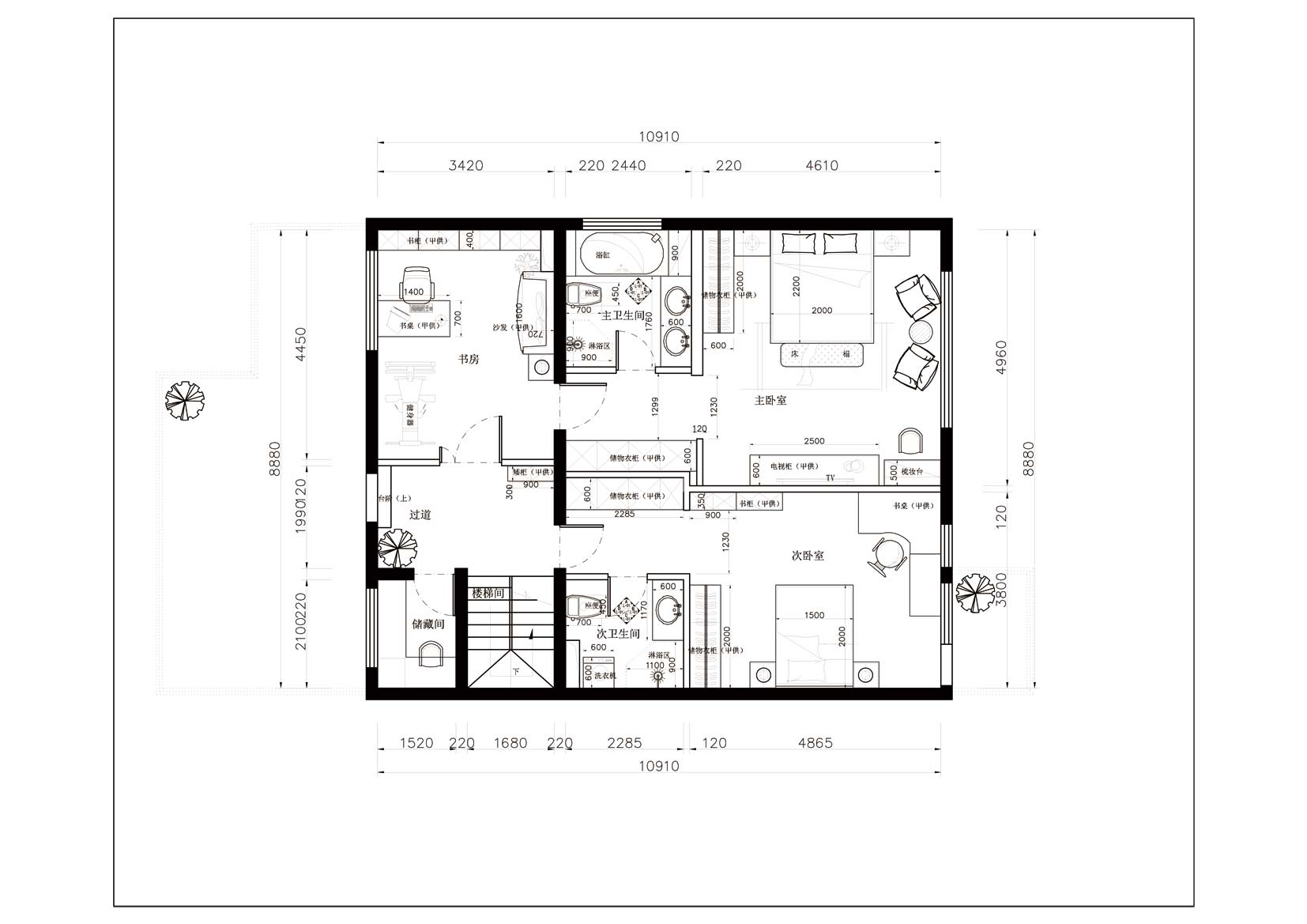
本案例業(yè)主是事業(yè)有成的一家三口,小區(qū)環(huán)境十分優(yōu)美,緊鄰百望山,戶型空間十分敞亮、明快。但此戶型擺在我面前的最大問題是入戶門廳太大,空間浪費明顯、及臥室房間不夠用等。因此在設計上首先要解決空間布局的問題,首先增加門廳玄關位置,擴大中西廚面積,其次在一樓增加老人房解決房間較少的問題。
在風格設計上結合客戶的喜好及習慣以美式簡約設計為主,配以溫馨的色調,古樸的家具以及賦予多變的頂面造型及燈光設計營造業(yè)主向往的舒適、自由、大氣的空間。
同風格案例:更多>>
同面積案例: